Skip to main content

v0.1

Minor Versionm

by Eli Jared Fastow

Introduction

Often, multi-view engineering drawings form a key component of the material reviewed when evaluating a design for manufacturing. This guide overviews the process of creating an engineering drawing, and the tools available to annotate it properly.

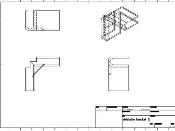
  1. Fusion 360 enables the creation of drawings directly based on a design. This bracket for a table comprises the demonstration part for this guide. To open a new drawing, navigate to the workspace toggle, and select drawing from design This will open a drawing creation window
    • Fusion 360 enables the creation of drawings directly based on a design. This bracket for a table comprises the demonstration part for this guide.

    • To open a new drawing, navigate to the workspace toggle, and select drawing from design

    • This will open a drawing creation window

    • In the drawing creation window, select the type of feature to draw (full assembly or only selected components)

    • Select the parameters of the drawing sheet

    • Hit Okay to open the new drawing

  2. After finishing with the Drawing from Design window, a new drawing workspace will open
    • After finishing with the Drawing from Design window, a new drawing workspace will open

    • The new workspace starts with the base view feature already open

    • The base view is just a depiction of the part from one face or angle. The full drawing consists of a base view and several projected views, typically capturing the design from the front, top, right, and isometric views

    • Click in the drawing sheet to place the base view

    • Use the base view window to toggle to appearance settings and scale

    • Select the edge visibility. Options allow for making hidden edges or threads visible or invisible.

  3. Use the projected view tool to create the rest of the perspectives on a design in a multi-view engineering drawing. Select the Projected Views button in the toolbar
    • Use the projected view tool to create the rest of the perspectives on a design in a multi-view engineering drawing.

    • Select the Projected Views button in the toolbar

    • Select the base view, then drag and click to create new projected views

    • Create enough new views to depict all of the details on a part. This typically requires a front, top, side, and isometric view

    • Hit the enter key to exit the projected view tool

  4. To edit a projected view, right click on the view then select "Edit View" This opens up a Drawing View setting window. Use this window to edit the appearance and scale.
    • To edit a projected view, right click on the view then select "Edit View"

    • This opens up a Drawing View setting window. Use this window to edit the appearance and scale.

    • This window also includes edge visibility settings

  5. Adding accurate dimensions is essential to a complete multi-view drawing Click on the smart dimension button on the toolbar to create dimensions
    • Adding accurate dimensions is essential to a complete multi-view drawing

    • Click on the smart dimension button on the toolbar to create dimensions

    • Smart dimensions can automatically recognize individual features. For example, selecting a line prompts a length dimension.

    • Selecting two points prompts a length dimension between them. Selecting three points prompts an angle.

    • To create an annotation, select either the text or leader text button in the toolbar.

    • Select the object to annotate if using leader text then type the annotation.

    • Format the text with the pop-up text window.

  6. Double click on any of the text in the properties table at the bottom right corner of the sheet to edit. To edit any of the global document settings, open the Document Settings menu in the feature tree and double click on any of the settings This opens the document settings menu
    • Double click on any of the text in the properties table at the bottom right corner of the sheet to edit.

    • To edit any of the global document settings, open the Document Settings menu in the feature tree and double click on any of the settings

    • This opens the document settings menu

    • Use the document settings menu to change any global text or display settings. For example, we used this menu to add units to all dimensions

Finish Line

One other person completed this guide.

Eli Jared Fastow

Member since: 11/4/19

3,602 Reputation

30 Guides authored

0 Comments

Add Comment